

Nel suggestivo borgo medievale di Torrita di Siena, situato su una collina nella parte occidentale della Val di Chiana, vendesi appartamento di complessivi 182 mq, con ingresso indipendente e ampi spazi interni. Il centro storico, racchiuso da una cinta muraria risalente al XII secolo, conserva angoli pittoreschi e opere d’arte di grande valore, offrendo un’atmosfera unica e autentica.
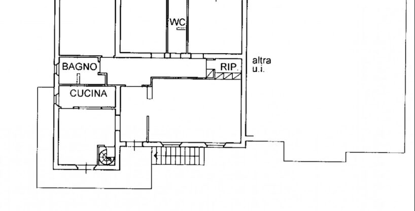
L’immobile è posto al piano primo e si compone di:
Ampio ingresso
Salone spazioso e luminoso
Soggiorno con angolo cottura e terrazza
Tre camere da letto
Due bagni
Corridoio e ripostiglio
Una scala interna collega al piano terra, dove si trovano:
Due locali di sgombero
Centrale termica
Garage di 30 mq
Completano la proprietà un giardino e un resede condominiale circostante, ideale per momenti di relax all’aperto.
Soluzione ideale per famiglie o per chi desidera vivere in un contesto storico con tutti i comfort.
Prezzo trattabile.
170.000€
Visualizza Dettagli50.000€
Visualizza DettagliIn agenzia
Visualizza DettagliProponilo alla nostra agenzia, saremo lieti di valutarlo per l’inserimento all’interno del nostro catalogo.
AP728 – Sinalunga vendesi appartamento di nuova costruzione di mq 51
Owning a home is a keystone of wealth… both financial affluence and emotional security.
Suze Orman