43.1385666,11.8584045






















43.1385666,11.8584045
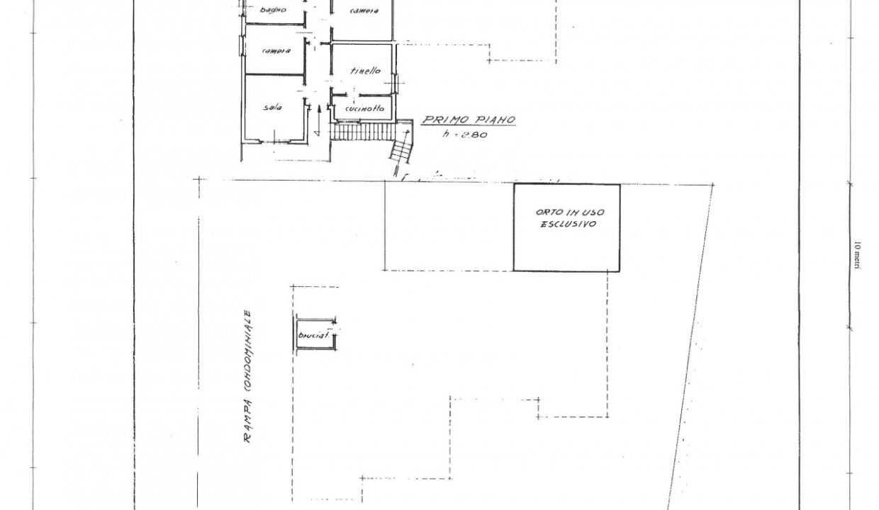
Montepulciano Stazione vendesi appartamento di mq 148 con ingresso indipendente posto al piano primo composto da salone con terrazza, sala da pranzo-angolo cottura con caminetto, 3 camere, 1 bagno, terrazza coperta, garage di mq 25, oltre orto di 910 metri.
120.000€
Visualizza Dettagli180.000€
Visualizza Dettagli155.000€
Visualizza DettagliProponilo alla nostra agenzia, saremo lieti di valutarlo per l’inserimento all’interno del nostro catalogo.
AP423 – Sinalunga vendesi appartamento al piano terra di mq 105
Owning a home is a keystone of wealth… both financial affluence and emotional security.
Suze Orman